Accedi

Appartamento in vendita a Castel Mella

1/4
365.000 €
Castel Mella
151 m² 4 locali
rocchi
Castel Mella
151 m² 4 locali
365.000 € rocchi
Descrizione

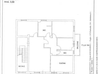
Appartamento Quadrilocale con giardino. Elegante loggia, in costruzione a Castel Mella, consegna immediata, in Classe A4!!!
L'appartamento nuovo è composto da ampio soggiorno angolo cottura, due camere grandi, una singola, ripostiglio, due bagni e bellissima loggia, completano l'appartamento il garage auto molto spazioso.

Caratteristiche
Tipologia:
Appartamento
Contratto:
Vendita
Comune:
Castel Mella
Indirizzo:
Codice annuncio:
TC60222214
Riferimento:
rocchi
Prezzo:
365.000 €
Superficie:
151 m²
Numero locali:
4
Numero bagni:
2
Classe energetica:
A4 16,61 kWh/m2 anno
Annunci simili
    Vedi altri annunci simili
    Trovi questo annuncio in
    Richiedi info per questo immobile Appartamento in vendita a Castel Mella
    /