Accedi

Appartamento all'asta ad Assemini via Goceano, 21, 09032 Assemini ca, Italia

Foto Video
1/51
137.250 €
SY601133
Assemini, Via Goceano, 21, 09032 Assemini ca, Italia
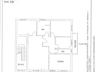
120 m² 3 locali
137.250 € SY601133
Descrizione

Asta fabbricato in corso di costruzione ad Assemini (ca) [sy601133]
Via Goceano, 21, 09032 Assemini ca, Italia
Proposta immobiliare in asta. Info dettagliate in agenzia o telefonicamente.
Via Goceano, 21, Assemini (ca): Lotto 1. Unità immobiliare al secondo piano, su un unico livello, cat. F/3 (in corso di costruzione).

Possibilita’ di Mutuo al 100% (da verificare previa analisi della documentazione)

Per maggiori informazioni puoi contattare il nostro referente di zona:

Responsabile ufficio Cagliari:
Stefano Pelusi, consulente in aste giudiziarie
Mobili: 347.9431406 – 338.5439508
Sede ufficio: Via Metastasio n. 11 – su planu - 09047 (ca)
Si riceve esclusivamente su appuntamento
(mail: centroastecagliari@gmail.Com)


Su questo immobile E’ possibile:

- Mutuo al 100% (da verificare previa analisi della documentazione)
- Visita Interni
- no Oneri Notarili
- Nessuna Ipoteca
- Agevolazione Prima Casa

Le foto pubblicate potrebbero non corrispondere all'immobile specifico, i documenti ufficiali sono visionabili in filiale.


Centro aste offre I seguenti servizi:

1. Prima consulenza
Appuntamento presso una delle 50 Filiali in Italia per offrire chiarimenti sulle aste ed ascoltare le tue esigenze immobiliari.


2. Mediazione creditizia
Servizio esclusivo ad alto valore aggiunto, proponendo un ventaglio di prodotti tra i più completi con studio fattibilità per la partecipazione in asta con mutuo fino al 100%


3. Assistenza tecnico - legale
- Ricerca Immobili ed invio settimanale per email
- Studio della perizia e della documentazione
- Accertamenti catastali per eventuali abusi edilizi
- Accompagnamento Visita Immobile
- Disbrigo pratiche per la partecipazione
- Rappresentanza Legale il giorno della vendita
- Rilascio del decreto di trasferimento in tempi brevi
- Assistenza per il Saldo Prezzo
- Compilazione F24 per Tasse
- Disbrigo Pratiche per Eventuale Sanatoria
- Assistenza alla Consegna Immobile


Per maggiori informazioni puoi contattare il nostro referente di zona:

Responsabile ufficio Cagliari:
Stefano Pelusi, consulente in aste giudiziarie
Mobili: 347.9431406 – 338.5439508
Sede ufficio: Via Metastasio n. 11 – su planu - 09047 (ca)
Si riceve esclusivamente su appuntamento
(mail: centroastecagliari@gmail.Com)
Data Asta: 18-02-2026
Codice Riferimento: sy601133

Caratteristiche
Tipologia:
Appartamento
Contratto:
Vendita
Comune:
Assemini
Indirizzo:
Via Goceano, 21, 09032 Assemini ca, Italia
Codice annuncio:
TC69614764
Riferimento:
SY601133
Prezzo:
137.250 €
Superficie:
120 m²
Numero locali:
3
Numero bagni:
2
Classe energetica:
NC 25,00 kWh/m2 anno
Mappa
Assemini - Via Goceano, 21, 09032 Assemini ca, Italia
Annunci simili
    Vedi altri annunci simili
    Trovi questo annuncio in
    Richiedi info per questo immobile Appartamento all'asta ad Assemini via Goceano, 21, 09032 Assemini ca, Italia
    /