Accedi

Intero Stabile in vendita a Scalea via Municipale, 21

1/21
159.000 €
346
Scalea, Via Municipale, 21
6 m²
159.000 € 346
Descrizione

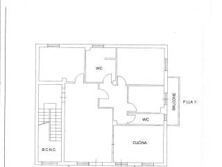
Nel caratteristico e suggestivo centro storico di Scalea, a pochi passi da piazza Castello, si propone in vendita una splendida Palazzina Storica di circa 550 mq sviluppata su 4 livelli. La proprietà databile all’incirca intorno al XIV – XV secolo è composta da imponenti mura perimetrali che conferiscono carattere e personalità all’immobile. La struttura necessita di una completa ristrutturazione, inclusi i solai ed il tetto. L’immobile si presta perfettamente alla realizzazione di b&b o Affittacamere. Possibilità di realizzare ampi terrazzi con splendida vista mare panoramica.

Caratteristiche
Tipologia:
Intero Stabile
Contratto:
Vendita
Comune:
Scalea
Indirizzo:
Via Municipale, 21
Codice annuncio:
TC46712809
Riferimento:
346
Prezzo:
159.000 €
Superficie:
6 m²
Numero locali:
Numero bagni:
Classe energetica:
G
Altre caratteristiche:
Mappa
Scalea - Via Municipale, 21
Annunci simili
    Vedi altri annunci simili
    Trovi questo annuncio in
    Richiedi info per questo immobile Intero Stabile in vendita a Scalea via Municipale, 21
    /