Accedi

Villa Bifamiliare in vendita a Riva del Po via 2 Giugno

1/9
45.000 €
198 m² 4 locali
37
Riva del Po, Via 2 Giugno
198 m² 4 locali
45.000 € 37
Descrizione

Cologna (fe)
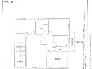
Appartamento da ristrutturare al 1°piano in palazzina bifamiliare indipendente
Ingresso indipendente, soggiorno/pranzo, cucina abitabile, 2 letto matrimoniali, bagno/v, balcone il tutto di circa mq 96, sottotetto abitabile dove ricavare altre stanze di circa Mq 97. Completano la proprietà due magazzini su scoperto comune.
Classe energetica in fase di definizione. Richiesta €.45.000 tratt. Rif.37

Caratteristiche
Tipologia:
Villa Bifamiliare
Contratto:
Vendita
Comune:
Riva del Po
Indirizzo:
Via 2 Giugno
Codice annuncio:
TC64009197
Riferimento:
37
Prezzo:
45.000 €
Superficie:
198 m²
Numero locali:
4
Numero bagni:
1
Classe energetica:
non disponibile
Mappa
Riva del Po - Via 2 Giugno
Annunci simili
    Vedi altri annunci simili
    Trovi questo annuncio in
    Richiedi info per questo immobile Villa Bifamiliare in vendita a Riva del Po via 2 Giugno
    /