Accedi

Appartamento in vendita a Ceccano piazza Berardi, 44

1/12
110.000 €
110 m² 5 locali
147
Ceccano, Piazza Berardi, 44
110 m² 5 locali
110.000 € 147
Descrizione

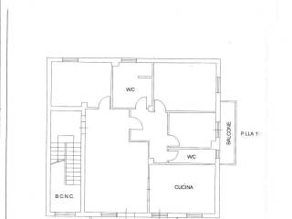
Ceccano (Fr) Piazza Berardi, centralissimo, vicino a tutti i collegamenti, fermata bus, circolari e stazione ff.Ss, nelle vicinanze di varie attività commerciali, supermercati, tabacchi, bar, proponiamo in vendita un appartamento della superficie di mq110, al piano 4 con ascensore, così composto: ingresso con disimpegno, salone, cucina abitabile, 3 camere da letto, bagno e ripostiglio, 2 balconi. Termoautonomo, cl. Energetica dichiarata “G”. Il prezzo di richiesta è di Euro 110.000,00. Rif. 147

Caratteristiche
Tipologia:
Appartamento
Contratto:
Vendita
Comune:
Ceccano
Indirizzo:
Piazza Berardi, 44
Codice annuncio:
TC48847027
Riferimento:
147
Prezzo:
110.000 €
Superficie:
110 m²
Numero locali:
5
Numero bagni:
1
Classe energetica:
G
Mappa
Ceccano - Piazza Berardi, 44
Annunci simili
    Vedi altri annunci simili
    Trovi questo annuncio in
    Richiedi info per questo immobile Appartamento in vendita a Ceccano piazza Berardi, 44
    /