Accedi

Appartamento in vendita a Milano via Simone Saint Bon, 2

1/27
321.000 €
NZ28100004/25_copia6
Milano, Via Simone Saint Bon, 2
146 m² 9 locali
321.000 € NZ28100004/25_copia6
Descrizione

Occasione
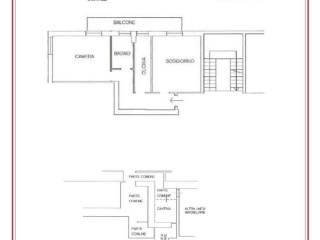
Appartamento al secondo piano di un edificio dotato di ascensore che si sviluppa su cinque piani fuori terra e uno interrato. L'abitazione è composta da: ingresso-corridoio, due soggiorni, ampia cucina, disimpegno, due camere, due bagni e due balconi. A completare la proprietà, una cantina al piano interrato.

Per maggiori informazioni contattateci al:

051 196 000 10

Centro Studi Immobiliari è una società specializzata nella ricerca e selezione e analisi strategica di immobili oltre che nella pianificazione e strategia di acquisto. Grazie ad uno studio di fattibilità su misura, avrai accesso ad esclusivi canali di acquisizione e ad una consulenza neutrale, orientata alla realizzazione del tuo progetto.

Immobile in procedura esecutiva

Procedura n. 1087/2020

Caratteristiche
Tipologia:
Appartamento
Contratto:
Vendita
Comune:
Milano
Indirizzo:
Via Simone Saint Bon, 2
Codice annuncio:
TC69519336
Riferimento:
NZ28100004/25_copia6
Prezzo:
321.000 €
Superficie:
146 m²
Numero locali:
9
Numero bagni:
2
Classe energetica:
NC
Altre caratteristiche:
Mappa
Milano - Via Simone Saint Bon, 2
Annunci simili
    Vedi altri annunci simili
    Trovi questo annuncio in
    Richiedi info per questo immobile Appartamento in vendita a Milano via Simone Saint Bon, 2
    /