Accedi

Appartamento all'asta a Modena via Benedetto Marcello

Foto Video
1/28
137.250 €
171153
Modena, Via Benedetto Marcello
113 m² 4 locali
137.250 € 171153
Descrizione

Ottima occasione - asta immobiliare

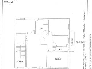
Appartamento al p. 2° (Condominio denominato "Gigante") composto da ingresso, sala da pranzo/soggiorno, cucina, due camere da letto matrimoniali, disimpegno, bagno, due balconi. Sup. Complessiva commerciale 113,40 mq. Modena Via Benedetto Marcello n. 58 – Int. 6. Immobili così identificati: n.C.E.U. Comune di Modena (mo): Foglio 148 part. 6 sub. 8, cat. A/2, classe 2, 5 vani, superficie catastale 100 mq., escluse aree scoperte 96 mq., r.C. € 542,28 , Via Benedetto Marcello n. 58, p. 2°. - Via Benedetto Marcello



...

Gli avvocati specializzati in aste immobiliari di simplex domus garantiscono un acquisto facile, sicuro ed economico.

Chiama per avere maggiori informazioni.

Il team di Avvocati di Simplex Domus è specializzato anche in acquisto in pre-asta e acquisto di crediti deteriorati npl.

Comprare un immobile all’asta è una eccellente opportunità economica.

Ricordiamo che è possibile comprare un immobile all'asta tramite un mutuo e che tutti i clienti di Simplex Domus ricevono una consulenza mutuo gratuita.

Più di 1000 famiglie e aziende hanno scelto Simplex Domus.

Tutti gli annunci immobiliari hanno scopo pubblicitario e Simplex Domus non può garantire la totale esattezza o contemporaneità di tutte le informazioni riportate. Pertanto consigliamo di visionare tutta la documentazione del tribunale tramite un nostro Avvocato specializzato.

Grazie per aver visionato il nostro annuncio.

Caratteristiche
Tipologia:
Appartamento
Contratto:
Vendita
Comune:
Modena
Indirizzo:
Via Benedetto Marcello
Codice annuncio:
TC69523981
Riferimento:
171153
Prezzo:
137.250 €
Superficie:
113 m²
Numero locali:
4
Numero bagni:
2
Classe energetica:
G 3,51 kWh/m2 anno
Mappa
Modena - Via Benedetto Marcello
Annunci simili
    Vedi altri annunci simili
    Trovi questo annuncio in
    Richiedi info per questo immobile Appartamento all'asta a Modena via Benedetto Marcello
    /