Accedi

Casale in vendita a Serravalle Pistoiese via Vinacciano

1/23
595.000 €
Serravalle Pistoiese, Via Vinacciano
344 m² 12 locali
vinacciano1
Serravalle Pistoiese, Via Vinacciano
344 m² 12 locali
595.000 € vinacciano1
Descrizione

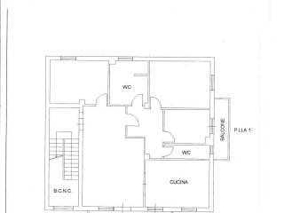
Pistoia Vinacciano, in bellissimo contesto collinare a 15 minuti dalla città, con ingresso da un caratteristico viale alberato con piante secolari, storica villa di campagna di origine duecentesCa (era la sede del Comune rurale di Vinacciano) e adattata a residenza di campagna nel 1600, a destinazione rurale, di complessivi mq 354 circa (eventuale deruralizzazione negoziabile). Il casale, posto al centro di un podere per lo più coltivato ad ulivi secolari di circa mq 16.000, si presenta in buono stato, anche se necessita di alcuni interventi di manutenzione e di un aggiornamento degli impianti. Al piano terra, con ingresso dal portale in pietra serena, ampio salone doppio, soggiorno con camino, sala da pranzo, grande cucina abitabile con caminetto, salottino con focolare, ingresso di servizio ed un bagno; al primo piano, cui si accede dallo scalone laterale in legno, grande soggiorno, camera padronale con bagno e stanza armadi, due camere matrimoniali di cui una con bagno privato, una cameretta singola ed un bagno. La proprietà è completata da un piccolo annesso ad uso rimessa collegato al casale da una caratteristica tettoia. Il casale, diviso catastalmente in due unità abitative indipendenti ciascuna con 3 camere da letto, può rappresentare la soluzione ideale per due famiglie (vedi ipotesi di progetto nella sezione Planimetrie). € 595.000,00 (Rif.Vinacciano1) ape:in fase di richiesta in esclusiva

Caratteristiche
Tipologia:
Casale
Contratto:
Vendita
Comune:
Serravalle Pistoiese
Indirizzo:
Via Vinacciano
Codice annuncio:
TC41192580
Riferimento:
vinacciano1
Prezzo:
595.000 €
Superficie:
344 m²
Numero locali:
12
Numero bagni:
Classe energetica:
G 250,00 kWh/m2 anno
Annunci simili
    Vedi altri annunci simili
    Trovi questo annuncio in
    Richiedi info per questo immobile Casale in vendita a Serravalle Pistoiese via Vinacciano
    /