Accedi

Villa Bifamiliare in vendita a Ravenna viale delle Americhe

1/17
265.000 €
PM/10000
Ravenna, Viale delle Americhe
73 m² 3 locali
265.000 € PM/10000
Descrizione

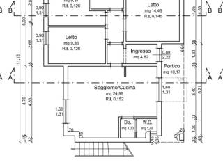
Punta Marina Terme - (ra) - Nella splendida cornice della nuova urbanizzazione di Viale delle Americhe vicino al campo sportivo, proponiamo in vendita villette angolari di prossima realizzazione con consegna a Natale 2025, composte da: al piano terra troviamo una zona soggiorno con angolo cottura dalla quale si esce sul grande giardino privato di 80mq, un antibagno ideale per organizzare la zona lavanderia, e un bagno. Al piano superiore trovano spazio la camera matrimoniale con grande armadio a muro, la camera singola e il secondo bagno. Completa la proprieta' il posto auto privato. L unita' immobiliari saranno tutte dotate di termocapotto, impianto fotovoltaico, riscaldamento a pavimento e impianti unicamente alimentati ad elettricita' al fine di ottenere la massimaclasse energetica possibile, e saranno completamente personalizzabili nelle finiture. L'Agenzia immobiliare Ritmo si occupa di intermediazione immobiliare dal 1979. Specializzata nella commercializzazione di immobili di vario genere, dai terreni e appartamenti alle ville al mare e nell'entroterra romagnolo, con un'ampia scelta di immobili selezionati e controllati, tutti di certificato valore e sicuro investimento, dal piccolo e poco impegnativo monolocale alla prestigiosissima villa in riva al mare. La nostra zona operativa si estende a tutta la Romagna. La nostra specializzazione nel settore immobiliare turistico/residenziale fa sì che l'Agenzia immobiliare Ritmo sia leader nel settore, offrendo assoluta affidabilità e garanzia a coloro che volessero mettersi in contatto con essa. Alla nostra clientela garantiamo la totale assistenza tecnica, legale e fiscale prima, durante e dopo l'acquisto.

Caratteristiche
Tipologia:
Villa Bifamiliare
Contratto:
Vendita
Comune:
Ravenna
Indirizzo:
Viale delle Americhe
Codice annuncio:
TC65681673
Riferimento:
PM/10000
Prezzo:
265.000 €
Superficie:
73 m²
Numero locali:
3
Numero bagni:
2
Classe energetica:
A4
Mappa
Ravenna - Viale delle Americhe
Annunci simili
    Vedi altri annunci simili
    Trovi questo annuncio in
    Richiedi info per questo immobile Villa Bifamiliare in vendita a Ravenna viale delle Americhe
    /