Accedi
Filtra Salva
Filtri Ordinamento Torna ai Filtri
Dove Monte Porzio Catone
Espandi la ricerca
Seleziona i comuni limitrofi per includerli nella tua ricerca
Cambia località
Contratto Vendita
Categoria Case
Tipologia
+ Espandi
+ Espandi
+ Espandi
Cambia Categoria
+ Altre opzioni
Prezzo
Superficie
Numero locali
Informazioni Aggiuntive sul Contratto
Stato Immobile
Caratteristiche Interni
Accessori
Tipo Riscaldamento
Caratteristiche Strutturali
Vista
Locali e Spazi
Lista Mappa
Ordine:Automatico
Salva ricerca

139 Case in vendita a Monte Porzio Catone

Box
Ricerche suggerite
Villa all'asta a Monte Porzio Catone via Montecompatri
149 m² 5 locali
184.000 €

Ottima occasione - asta immobiliare Abitazione su 4 livelli con corti pertinenziali annesse oltre garage. - Via Montecompatri Gli avvocati specializzati in aste immobiliari di simplex domus garantiscono un acquisto facile, sicuro ed economico....

Box

Terrazzo

All'asta/Asta Giudiziaria

Balcone

Cucina Abitabile

Appartamento a Monte Porzio Catone via Giacomo Leopardi, 2
95 m² 3 locali
175.000 €

Al centro di Monte Porzio Catone, in un contesto riservato nel verde, proponiamo una eccellente opportunità: stabile in cortina, appartamento di 95mq c.A. Composto da ampio ingresso, soggiorno, 2 camere, cucina abitabile con grande tinello, serviz...

Parzialmente Arredato

Panoramica

Balcone

Cucina Abitabile

Appartamento a Monte Porzio Catone via Guglielmo Oberdan, 16
30 m² 1 locale
55.000 €

Proponiamo in vendita un accogliente monolocale situato al secondo piano di una palazzina, nel cuore di Monte Porzio Catone. L’immobile è composto da un unico ambiente ampio e luminoso, facilmente organizzabile, oltre a un bagno finestrato dotato...

A Reddito

Zona Servita

Luminoso

Bagno Finestrato

Box Doccia

Appartamento a Monte Porzio Catone via Monte Compatri
140 m² 5 locali
325.000 €

Monteporzio Catone Via di Montecompatri ar immobilia re propone in vendita rara opportunita' particolare appartamento in villa posizione dominante ampia metratura composto da Ingresso Salone doppio con camino 4 camere da letto cucina abitabile dop...

Giardino Privato

Box

Terrazzo

Caminetto

Balcone

Cucina Abitabile

Appartamento da privato a Monte Porzio Catone via Guglielmo Oberdan
55 m² 4 locali
129.000 €

Appartamento bilocale situato in una palazzina del centro storico di soli due piani. L’appartamento è composto da ingresso, salone con angola cottura non a vista, camera da letto spaziosa e bagno con doccia. Nell’ingresso è presente una scala in l...

Terrazzo

Da Privato

Centrale

Lavanderia

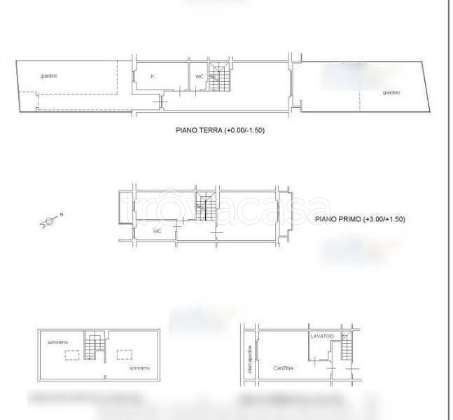
Villa all'asta a Monte Porzio Catone via Pilozzo, 17
400 m² 8 locali
1.888.043 €

Complesso immobiliare costituito da appezzamento di mq. 49.962,00, comune di monte porzio catone (rm) - via pilozzo n. 17, costituito dai terreni coltivati in piena produzione e da fabbricati in ottimo stato di conservazione (partt.102 e 703) e da...

All'asta/Asta Giudiziaria

Cucina Abitabile

Studio

Villa a Monte Porzio Catone via Tuscolo, 40
565 m² 8 locali
650.000 €

A breve servizio pubblicitario completo. Nel cuore verde del Parco del Tuscolo, a metà strada tra Frascati e Monte Porzio Catone, proponiamo in esclusiva una prestigiosa villa indipendente di circa 600 mq, immersa in un’oasi privata di tranquillit...

Giardino Privato

Terrazzo

Vista Panoramica

Parzialmente Arredato

Box Doppio

Luminoso

Villa a Monte Porzio Catone via Fontana Candida
400 m² 7 locali
395.000 €

**Villa Unifamiliare in Vendita a Roma** Scopri questa splendida villa unifamiliare di 400 mq, situata in una zona ben collegata e a pochi passi da tutti i servizi. Immersa in un verde rigoglioso, questa proprietà offre un ampio salone di rappres...

Giardino Privato

Box

Caminetto

Buono Stato

Luminoso

Terrazzo Coperto

Villa a Schiera all'asta a Monte Porzio Catone via Montecompatri, 17
149 m² 7 locali
184.000 €

Abitazione su 4 livelli con corti pertinenziali annesse oltre garage. Data asta 22/01/2026 Il gruppo fism, settore Aste Giudiziarie, offre: Consulenza legale completamente gratuita: Grazie ad un primo incontro avrai la possibilità di usufruire...

Box

All'asta/Asta Giudiziaria

Cucina Abitabile

Studio

Villa Bifamiliare all'asta a Monte Porzio Catone via Montecompatri, 17, 00040 Monte Porzio Catone rm, Italia - Monte Porzio Catone (rm), 17
166 m² 6 locali
184.000 €

Abitazione su 4 livelli con corti pertinenziali annesse oltre garage. Abitazione su quattro livelli con corti pertinenziali annesse. Garage pertinenziale al piano interrato. Aste Group nasce per offrire consulenza specializzata nel ramo delle ast...

Box

All'asta/Asta Giudiziaria

Cucina Abitabile

Villa Bifamiliare all'asta a Monte Porzio Catone via Pilozzo n. 17 - 00040 Monte Porzio Catone (rm), 17
944 m² 6 locali
1.888.043 €

Complesso immobiliare costituito da appezzamento di mq. 49.962,00, Comune di Monte Porzio Catone (rm) - via Pilozzo n. 17, costituito dai terreni coltivati in piena produzione e da fabbricati in ottimo stato di conservazione (partt.102 e 703) e da...

All'asta/Asta Giudiziaria

Cucina Abitabile

Villa Bifamiliare all'asta a Monte Porzio Catone via Pilozzo n. 17 - 00040 Monte Porzio Catone (rm), 17
49.962 m² 6 locali
1.888.043 €

Complesso immobiliare costituito da appezzamento di mq. 49.962,00, Comune di Monte Porzio Catone (rm) - via Pilozzo n. 17, costituito dai terreni coltivati in piena produzione e da fabbricati in ottimo stato di conservazione (partt.102 e 703) e da...

All'asta/Asta Giudiziaria

Villa Bifamiliare all'asta a Monte Porzio Catone via Montecompatri, 17, 00040 Monte Porzio Catone rm, Italia - Monte Porzio Catone (rm), 17
149 m² 6 locali
184.000 €

Abitazione su 4 livelli con corti pertinenziali annesse oltre garage. Abitazione su quattro livelli con corti pertinenziali annesse. Garage pertinenziale al piano interrato. Astadev marchio del Gruppo Property Dev - Il tuo partner per investiment...

Box

All'asta/Asta Giudiziaria

Appartamento da privato a Monte Porzio Catone via Frascati, 25
85 m² 5 locali
185.000 €

Monte Porzio Catone appartamento di 85 mq posto al primo piano composto da ingresso soggiorno cucina abitabile disimpegno 2 camere matrimoniali bagno 2 balconi coperti comodo garage di 20mq e cantina palazzina in c. A. Del 1980 euro 185.000

Box

Da Privato

Cantina

Balcone

Cucina Abitabile

Appartamento a Monte Porzio Catone via Fontana Della Girandola, 10
179 m² 4 locali
410.000 €

Splendido appartamento su due livelli con ingresso, ampio salone, cucina, 3 camere, 3 bagni, (ogni camere ha il suo bagno), 2 cabine armadio, ripostiglio, 2 grandi armadi a muro, 1 libreria in legno, 2 ampi balconi abitabili. Esposizione s/E, quin...

Centrale

Vicinanze negozi

Balcone

Ripostiglio

Appartamento a Monte Porzio Catone piazza Porzio Catone No Number Snc
230 m² 6 locali
495.000 €

Proponiamo in vendita uno splendido appartamento nel centro storico di 230 mq. Ca. Su due livelli. P/2 ingresso, grande salone con camino, 2 camere con bagno, studio, cucina, bagno. P/3 soggiorno, cucina, camera, bagno, loc. Lavanderia, 3 ripostig...

Terrazzo

Immobile di Prestigio

Caminetto

Centrale

Commerciale

Turistica

Appartamento a Monte Porzio Catone via Frascati, 94
110 m² 3 locali
240.000 €

Disponiamo in vendita un appartamento su due livelli (ii + Mansarda abitabile residenziale) con ingresso, ampio soggiorno, cucina, 2 camere, 2 bagni, ampio balcone abitabile, grande luminosità. Esposizione s. se. Posizione all'interno del compless...

Vicinanze negozi

Mansarda abitabile

Balcone

Appartamento a Monte Porzio Catone via Frascati
110 m² 3 locali
235.000 €

Disponiamo in vendita un delizioso appartamento su 2 livelli. Ingresso, salone, cucina, 2 camere, 2 bagni, piccolo disimpegno, terrazzo a livello. L'appartamento è inserito in un conteso residenziale (Residence Frascati) completamente immerso nel...

Terrazzo

Centrale

Vicinanze negozi

Balcone

Appartamento all'asta a Monte Porzio Catone via Monte Compatri, 17
166 m²
183.990 €

Riferimento = 4486078 Via Montecompatri, 17, 00040 Monte Porzio Catone rm, Italia, Monte Porzio Catone Roma Abitazione su quattro livelli con corti pertinenziali annesse, facente parte di complesso immobiliare, sita In territorio del Comune di...

Box

All'asta/Asta Giudiziaria

Parzialmente Arredato

Balcone

Studio

Appartamento a Monte Porzio Catone via Frascati
130 m² 5 locali
319.000 €

Monteporzio catone appartamento 130mq con terrazzo di 120mq Codice Unico: rm12617 € 319.000,00 Mediazionecasa vende a Monteporzio Catone un appartamento panoramico di circa 130 mq con un ampio terrazzo di 120 mq. L'immobile è così composto: Ing...

Terrazzo

Vista Panoramica

Buono Stato

Zona Residenziale

Cucina Abitabile

Appartamento all'asta a Monte Porzio Catone via Monte Compatri, 17
149 m²
183.990 €

Riferimento: 4486078 Via Montecompatri, 17, 00040 Monte Porzio Catone rm, Italia, Monte Porzio Catone Roma Lotto: lotto unico Abitazione su quattro livelli con corti pertinenziali annesse. Data di vendita: 22/01/2026 10:30 Offerta minima: € 1...

All'asta/Asta Giudiziaria

Parzialmente Arredato

Studio

Appartamento all'asta a Monte Porzio Catone via Monte Compatri, 17
164 m² 7 locali
184.000 €

Data asta 22/01/2026 - offerta minima € 184.000,00 - rialzo € 12.200,00 - procedura vl 326/2022 Lotto u Mm Aste offre la sua consulenza per l’acquisto in Asta o pre-asta (Saldo e Stralcio) del seguente immobile: Piena e perfetta proprietà su abita...

Giardino Privato

Box

All'asta/Asta Giudiziaria

Cantina

Balcone

Cucina Abitabile

Attico a Monte Porzio Catone via Romoli
140 m² 4 locali
349.000 €

In Via Romoli proponiamo un elegante attico indipendente al primo piano, in ottimo stato e caratterizzato da ambienti ampi e luminosi. L’ingresso si apre su un salone davvero spazioso, illuminato da grandi aperture che conducono direttamente a un...

Posto Auto

Terrazzo

Luminoso

Balcone

Cucina Abitabile

Studio

Villa a Monte Porzio Catone via Sant'Eusebio, 14
190 m² 10 locali
635.000 €

In una delle zone più suggestive dei Castelli Romani, situata tra Frascati e Monte Porzio Catone, presentiamo una splendida villa unifamiliare in stile casale, realizzata con pregiato mattoncino romano, che conferisce eleganza e autenticità archit...

Giardino

Box

Caminetto

Piscina Privata

Cucina Abitabile

Studio